PARTS & DRAWINGS
36SL Part Information
All new fork for 2026:
| New CSU and Lowers | Replaces the standard 34 chassis. Not backwards compatible. |
| New Lowers | Oil channels now on inside of fork. Better fore/aft support to improve bushing load case. Not backwards compatible. |
| New Dampers | Same Grip X/Grip X2/Grip dampers that you know but now built to meet the needs of the new chassis. Not backwards compatible. |
| New Air spring FLOAT NA3 Glidecore | Cassette style air cap and an updated neg plate design. Not backwards compatible. |
| New Decals | New decals for the new fork design. |
| New Mudguard | Meet the needs of the new lower chassis. |
| Service tooling | Specific tooling for new air spring assembly. |
Maintenance Information:
| Service Interval | Full Service 125 Hours |
| 803-00-933 | Kit: Dust Wiper, Forx, 36mm, Low Friction, No Flange |
| 803-01-320 | Seal Kit: MY19+ 32, 34, 36, 38, 40 GRIP Cartridge Rebuild |
| 803-04-090 | Seal Kit: 2025 Grip SL (32 TC, 32 SC, 34 SC, 34 SL, 36 SL) |
| 803-04-091 | Seal Kit: 2025 Grip X (34, 34 SL, 36, 36 SL, 38, Super Z) |
| 803-04-086 | Seal Kit: 2025 Grip X2 (34, 36, 38, 40) |
| 803-04-351 | Seal Kit: 2026 36SL FLOAT NA 3 Glidecore Rebuild |
| 803-04-052 | Kit: 2025, 36, Lower Leg Bushings |
| 398-00-772 | Tooling: Guided Fork Seal Driver, One Piece Seal/Wiper, 36 |
| 398-00-681 | 32 Damper-side and ALL 32-34-38-40 Spring-side Removal Tool |
| 398-00-682 | 34-36-38-40 Damper-side Removal Tool |
| 803-01-324 | Kit: Tooling: 2019 Clamps, Grip Damper, Body and Shaft |
| 398-00-981 | Tool: Service, VVC, HSR, Grip X2 |
| 803-04-095 | Service Tool: GripX2, Piston Band Sizer Pusher |
| 398-01-242 | Tooling: Bullet Tool, Grip X2 HSR |
| 398-01-168 | Service Tool: Grip X2, Piston Stud Socket |
| 398-01-362 | Tooling: Compression Needle Driver, Grip Damper |
Air Spring Tuning Information:
| 803-01-664 | Kit: Volume Spacer, FLOAT NA 2, 36, Quantity 5, (Ref: 234-04-736) |
| 234-04-736 | Volume Spacer, FLOAT NA 2, 36 |
Oil Information:
| Application | Description | Part |
| Grip/Grip X/Grip X2 Dampers | Oil: Suspension Fluid, 4 WT, 1.0 Liter Bottle | 025-03-063 |
| Oil: Suspension Fluid, 4 WT, 23L | 025-03-064 | |
| NA2 Air Chamber/Float Side Bath Oil | Oil: AM, FOX 20 WT Gold, T22238, 32 oz | 025-03-072 |
| Oil: AM, FOX 20 WT Gold, T22238, 23L | 025-03-073 |
| Oil Application | Oil Volume |
| Grip/GripX2 VVC Damper Side Bath | 40cc (4 WT) |
| Grip X Damper Side Bath | 20cc (4 WT) |
| Air Chamber | 3cc Slickoleum (Slick Honey)/3cc (FOX 20 WT Gold) |
| Air Side Bath | 10cc (FOX 20 WT Gold) |
CSU Assemblies:
| 820-12-892-KIT | Service Set: 2026 36SL F-S, 140 MAX, Kashima, Shiny Black, 9mm OS (44 Rake), 58HT, CSU |
| 820-12-891-KIT | Service Set: 2026 36SL F-S, 140 MAX, Kashima, Matte Black, 9mm OS (44 Rake), 58HT, CSU |
| 820-12-888-KIT | Service Set: 2026 36SL P-S & P-Se, 140 MAX, Black Ano, Matte Black, 9mm OS (44 Rake), 58HT, CSU |
| 820-12-889-KIT | Service Set: 2026 36SL P-S & P-Se, 140 MAX, Black Ano, Shiny Black, 9mm OS (44 Rake), 58HT, CSU |
Lower Leg Assemblies:
| 820-20-469-KIT | Service Set: 2026 36SL F-S & P-Se, 29in, 140 MAX, 15x110 Kabolt SL, Matte Black, Lower Leg Assy |
| 820-20-470-KIT | Service Set: 2026 36SL F-S & P-Se, 29in, 140 MAX, 15x110 Kabolt SL, Shiny Black, Lower Leg Assy |
| 820-20-471-KIT | Service Set: 2026 36SL F-S & P-Se, 29in, 140 MAX, 15x110 Kabolt SL, Shiny Orange, Lower Leg Assy |
Axle Assemblies:
| 820-09-063-KIT | Service Set: 2020 FOX-Marzocchi 15x110 QR Adjust Axle Assembly |
| 229-19-561 | Shaft: Axle, 15 X 110mm Kabolt SL, Small Flange, Black Ano (T) |
Lower Leg Small Parts:
| 820-00-202-KIT | Service Set: Light Disc Brake Hose Guide Parts |
| 820-09-148-KIT | Service Set: 2026 Pressure Release Button, Low Profile, Lower Leg, F-S |
| 803-04-262 | Assembly: Mudguard, 2026 36, Short, AM |
| 803-04-264 | Assembly: Mudguard, 2026 36, Long, AM |
Decal Kits:
| 803-04-272 | Decal Kit: 2026, 36 SL, F-S, Kashima/Grey Logo, Shiny Black Fork |
| 803-04-273 | Decal Kit: 2026, 36 SL, F-S, Black Logo, Shiny Orange Fork |
| 803-04-274 | Decal Kit: 2026, 36 SL, P-SE, Grey Logo, Matte Black Fork |
| 803-04-275 | Decal Kit: 2026, 36 SL, P-S, Grey Logo, Matte Black Fork |
Complete Cartridges:
| 820-18-635-KIT | Service Set: 2026 36 SL 140, GRIP SL, 3 Pos Adj, Cart Assy Complete |
| 820-18-636-KIT | Service Set: 2026 36 SL 140, GRIP SL, Push-Lock Remote Cart Assy Complete |
| 820-18-603-KIT | Service Set: 2026 36SL 140 MAX, GRIP X LSR / HSC / LSC Cart Assy Complete |
| 820-18-540-KIT | Service Set: 2026 36SL 140, Grip X2 HSR / LSR / HSC/ LSC Cart Assy, Cart Assy Complete, CFBV, CM, RXL, Blue Ano |
| 820-18-600-KIT | Service Set: 2026 36SL 140 MAX, Grip Cart Assy Complete |
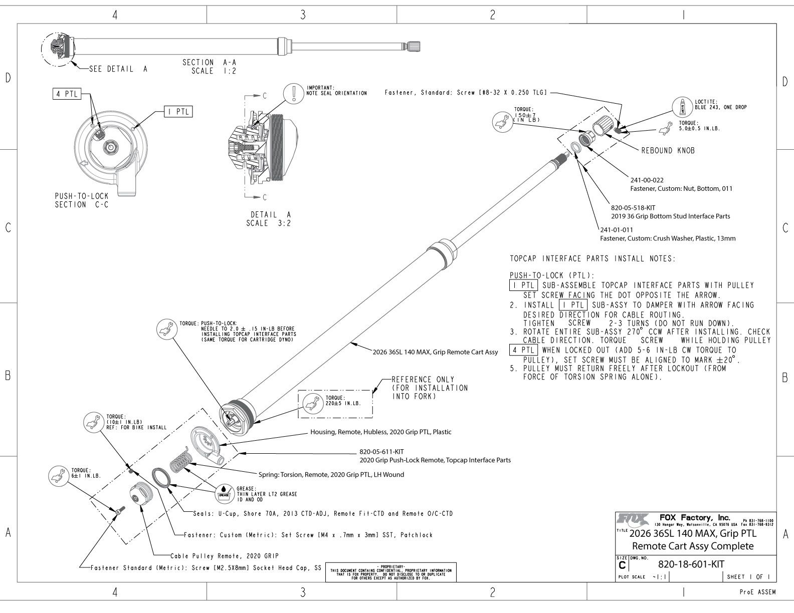
| 820-18-601-KIT | Service Set: 2026 36SL 140 MAX, Grip PTL Remote Cart Assy Complete |
Cartridge Topcap Assemblies:
| 820-05-825-KIT | Service Set: 2026 36 SL, GRIP SL, Topcap Assy, 3 Pos Adj |
| 820-05-824-KIT | Service Set: 2026 36 SL, GRIP SL, Remote, Topcap Assy |
| 820-05-807-KIT | Service Set: 2026 36SL 140, GRIP X, Topcap Assy |
| 820-05-723-KIT | Service Set: 2025 36, Grip X2, Topcap Assy |
| 820-05-805-KIT | Service Set: 2026 36SL 140 MAX, Grip Topcap Assy |
| 820-05-806-KIT | Service Set: 2026 36SL 140 MAX, Grip Remote Topcap Assy |
Damper Topcap Interface Parts:
| 820-05-750-KIT | Service Set: 2025 Grip X HSC / LSC Topcap Interface Parts, Blue Ano |
| 820-05-763-KIT | Service Set: 2025 Grip X Push-Lock Remote, Topcap Interface Parts, Blue Ano |
| 820-05-724-KIT | Service Set: 2025 Grip X2 HSC / LSC Topcap Interface Parts, Blue Ano |
| 820-05-623-KIT | Service Set: 2020 Grip 34 & 36 P-S Topcap Interface Parts |
| 820-05-611-KIT | Service Set: 2020 Grip Push-Lock Remote, Topcap Interface Parts |
Compression Base Valve Valving:
| 820-03-703-KIT | Service Set: Valve Stack Assy: 2025 Grip X2, Compression Firm, CF (Standard Tune) |
| 820-03-764-KIT | Service Set: Valve Stack Assy: 2025 Grip X2, Compression Light, CL (Standard Tune) |
Rebound Piston Assembly:
| 820-03-730-KIT | Service Set: 2025 GRIP X, Rebound Piston Assy, 8mm Shaft |
| 820-03-798-KIT | Service Set: 2025 Grip X2 HSR / LSR Rebound Piston Assy, Service Parts (Order Valving Separately) |
| 820-03-750-KIT | Service Set: 2025 Grip Rebound Piston Assy |
GRIP X2 Mid Valve Compression Valving:
| 820-03-765-KIT | Service Set: Valve Stack Assy: 2025 Grip X2, Mid Valve, CL (Optional Tune) |
| 820-03-702-KIT | Service Set: Valve Stack Assy: 2025 Grip X2, Mid Valve, CM (Standard Tune) |
GRIP X2 Rebound Valving:
| 820-03-766-KIT | Service Set: Valve Stack Assy: 2025 Grip X2, Rebound Valving, X-LIGHT (Optional Tune) |
| 820-03-743-KIT | Service Set: Valve Stack Assy: 2025 Grip X2, Rebound Valving, Light (Optional Tune) |
| 820-03-701-KIT | Service Set: Valve Stack Assy: 2025 Grip X2, Rebound Valving, Med (Standard Tune) |
| 820-03-778-KIT | Service Set: Valve Stack Assy: 2025 Grip X2, Rebound Valving, MED+ (Optional Tune) |
| 820-03-779-KIT | Service Set: Valve Stack Assy: 2025 Grip X2, Rebound Valving, FIRM (Optional Tune) |
Damper Shaft Assemblies:
| 820-03-805-KIT | Service Set: 2026 36 SL 140, GRIP SL LSR Damper Shaft Assy |
| 820-05-755-KIT | Service Set: 2025 38 180, GRIP X LSR Damper Shaft Assy |
| 820-03-784-KIT | Service Set: 2025 34 140, GRIP X LSR Damper Shaft Assy, Remote |
| 820-03-776-KIT | Service Set: 2026 Grip X2 HSR / LSR Damper Shaft Assy, 140 36SL, CM, RXL |
| 820-03-751-KIT | Service Set: 2025 36 and 38, 180 MAX, Grip Damper Shaft Assy |
Remotes and Assemblies:
| 820-07-190 | Remote Assembly, 2022 Suspension Remote, 3-POS, 22.2, Dual 0,9mm Cable |
| 820-07-191 | Remote Assembly, 2022 Suspension Remote, 2-POS, 22.2, Dual 0,9mm Cable |
| 820-07-129-KIT | Service Set: 2022 I-SPEC-EV Remote Adaptor Assembly for 2022 Forks/Shock Remotes |
| 825-05-006-KIT | Service Set: 22.2 Remote Band Clamp Assy, For: 2022 Fork/Shock Remotes and 2021 1x Transfer Remotes |
| 925-06-007 | 2026 AM,FOX Suspension + Seatpost Remote,3-POS/2-POS,22.2,MM,I-SPEC EV |
Damper Bottom Stud Interface Parts:
| 820-05-377-KIT | Service Set: 2016 FIT4 Bottom Stud Interface Parts 36, 38 and 40 |
| 820-05-518-KIT | Service Set: 2019 36 Grip Bottom Stud Interface Parts |
| 820-05-501-KIT | Service Set: 2019 Grip2 HSR / LSR Bottom Stud Interface Parts |
FLOAT NA3 Glidecore Air Shaft Assemblies:
| 820-02-274-KIT | Service Set: Air Shaft Assy, 2026 36SL, 130mm, FLOAT NA3 Glidecore, 1.312" Bore, Dual Bushing Neg Plate |
| 820-02-273-KIT | Service Set: Air Shaft Assy, 2026 36SL, 120mm, FLOAT NA3 Glidecore, 1.312" Bore, Dual Bushing Neg Plate |
| 820-02-275-KIT | Service Set: Air Shaft Assy, 2026 36SL, 140mm, FLOAT NA3 Glidecore, 1.312" Bore, Dual Bushing Neg Plate |
FLOAT NA3 Glidecore Topcap Assemblies:
| 820-05-810-KIT | Service Set: Topcap Assy, 2026 FLOAT LC NA 2, 36, Black, Internal Spline |
| 234-04-550 | (T) Spring Hardware: 2014 36 FLOAT Air Topcap, Al, Blue Ano |
2026 36SL GRIP X
- 820-18-603-KIT 2026 36SL 140 MAX, GRIP X LSR/HSC/LSC Cart Assy Complete
- 2026 36SL 140 MAX, GRIP X, LSR/HSC/LSC, Cart Assy .
- 820-05-807-KIT 2026 36SL 140, GRIP X, Topcap Assy
- GRIP X Topcap Interface Part Information .
- 820-05-755-KIT 2025 38 180, GRIP X LSR Damper Shaft Assy
- 820-03-730-KIT 2025 GRIP X, Rebound Piston Assy, 8mm Shaft
- 820-03-729-KIT Bearing Housing: 2025 GRIP X
- 820-03-728-KIT Valve Stack Assy: 2025 GRIP X, Compression Medium, CM
- 820-03-727-KIT 2025 GRIP X Rebound Valving, RF
- 820-03-726-KIT Valve Stack Assy: 2025 GRIP X, Mid Valve, CM
2026 36SL GRIP X2
- 820-18-540-KIT 2026 36SL 140, Grip X2 HSR / LSR / HSC/ LSC Cart Assy, Cart Assy Complete, CFBV, CM, RXL, Blue Ano
- 2026 36SL 140, Grip X2 HSR / LSR / HSC/ LSC Cart Assy, CFBV, CM, RXL .
- 820-05-723-KIT 2025 36, Grip X2, Topcap Assy
- 820-03-776-KIT 2026 Grip X2 HSR / LSR Damper Shaft Assy, 140 36SL, CM, RXL
- 820-03-732-KIT 2025 Grip X2, Rebound Check Valve Assy
- 820-03-731-KIT Valve Stack Assy: 2025 GRIP X2, Base Valve Refill
- 820-03-703-KIT Valve Stack Assy: 2025 Grip X2, Compression Firm, CF
- 820-03-702-KIT Valve Stack Assy: 2025 Grip X2, Mid Valve, CM
- 820-03-766-KIT Valve Stack Assy: 2025 Grip X2, Rebound Valving, X-LIGHT
- 820-03-782-KIT 2025 Grip X2 HSR / LSR Rebound Piston Assy CM, RXL
- 820-03-699-KIT 2025 Grip X2, Bearing Housing Assy
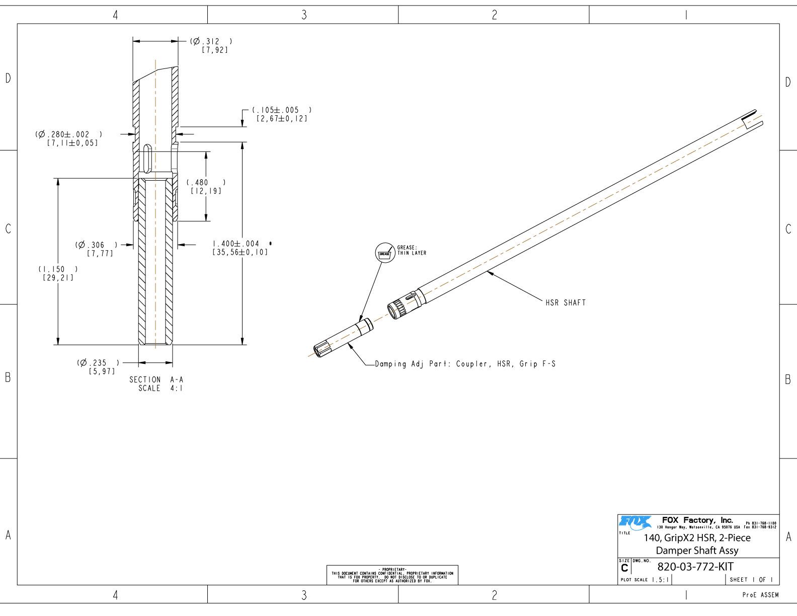
- 820-03-772-KIT Assy Dwg: 2-Piece HSR Shaft, 2019 Grip2
- 820-03-703-KIT Valve Stack Assy: 2025 GRIP X2, Compression Firm, CF
- 820-03-702-KIT 2025 GRIP X2, Mid Valve
2026 36SL GRIP
- 820-18-600-KIT 2026 36SL 140 MAX, Grip Cart Assy Complete
- 2026 36SL 140 MAX, GRIP Cart Assy .
- 820-05-805-KIT 2026 36SL 140 MAX, Grip Topcap Assy
- 820-03-751-KIT 2025 36 and 38, 180 MAX, Grip Damper Shaft Assy
- 820-03-750-KIT 2025 Grip Rebound Piston Assy
- 820-03-747-KIT 2025 Grip Mid-Valving
- 820-03-746-KIT 2025 Grip Rebound Valving
- 820-03-745-KIT 2025 Grip Compression Valving
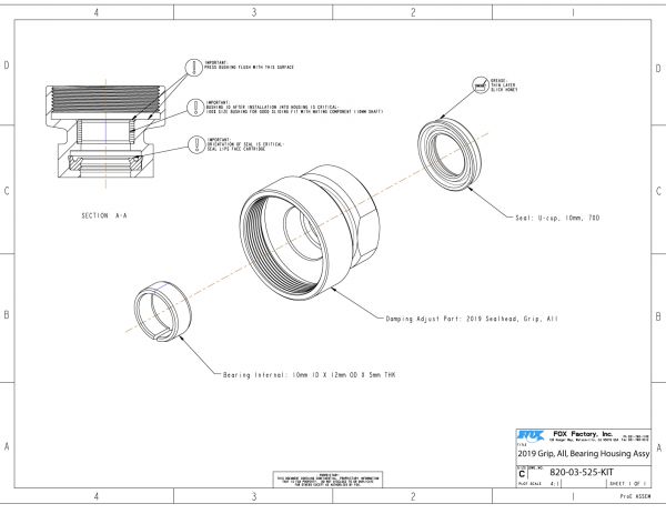
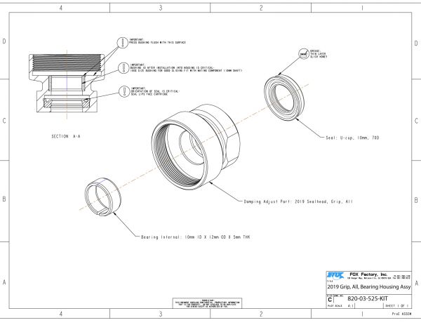
- 820-03-525-KIT 2019 Grip, All, Bearing Housing Assy
2026 36SL GRIP Remote
- 820-18-601-KIT 2026 36SL 140 MAX, Grip PTL Remote Cart Assy Complete
- 2026 36SL 140 MAX, Grip PTL Remote Cart Assy .
- 820-05-806-KIT 2026 36SL 140 MAX, Grip Remote Topcap Assy
- 820-03-751-KIT 2025 36 and 38, 180 MAX, Grip Damper Shaft Assy
- 820-03-750-KIT 2025 Grip Rebound Piston Assy
- 820-03-747-KIT 2025 Grip Mid-Valving
- 820-03-746-KIT 2025 Grip Rebound Valving
- 820-03-745-KIT 2025 Grip Compression Valving
- 820-03-525-KIT 2019 Grip, All, Bearing Housing Assy

























































































