PARTS & DRAWINGS
32mm Part Information
No Changes for 2026:
Maintenance Information:
| Service Interval | Full Service 125 Hours |
| 803-01-320 | Seal Kit: MY19+ 32, 34, 36, 38, 40 GRIP Cartridge Rebuild |
| 803-00-962 | Seal Kit: 32 FLOAT NA2 Rebuild |
| 803-00-944 | Kit: Dust Wiper, Forx, 32mm, Low Friction, No Flange |
| 398-00-770 | Tooling: Guided Fork Seal Driver, One Piece Seal/Wiper, 32 |
| 398-00-681 | 32 Damper-side and ALL 32-34-36-38-40 Spring-side Removal Tool |
| 803-01-324 | Kit: Tooling: 2019 Clamps, Grip Damper, Body and Shaft |
Air Spring Tuning Information:
| 803-01-666 | Kit: Volume Spacer, FLOAT NA 2, 32, Quantity 5, (Ref: 234-04-811) |
| 234-04-811 | Volume Spacer, FLOAT NA 2, 32 |
Oil Information:
| Application | Description | Part # |
| All Grip Dampers and Damper Bath Oil | Oil: Suspension Fluid, 4 WT, 1.0 Liter Bottle | 025-03-063 |
| Oil: Suspension Fluid, 4 WT, 23L | 025-03-064 | |
| FLOAT NA2 Air Chamber and Bath Oil | Oil: AM, FOX 20 WT Gold, T22238, 32 oz | 025-03-072 |
| Oil: AM, FOX 20 WT Gold, T22238, 23L | 025-03-073 |
| Oil Application | Oil Volume |
| 32 RHYTHM GRIP Damper-Side | 30cc (FOX 4WT) |
| 32 RHYTHM 100-120 Air-Side | 10cc (FOX 20WT Gold) |
| All Float NA2 and RHYTHM Air Chamber | 3cc Slickoleum (Slick Honey)/3cc (FOX 20WT Gold) |
CSU Assemblies:
| 820-12-014-KIT | Service Set: 2018 32 Rhythm 27.5 & 29in 15x110QR 44 OS CSU Matte Black |
| 820-12-015-KIT | Service Set: 2018 32 Rhythm 27.5 & 29in 15x110QR 44 OS CSU Shiny Black |
| 820-12-026-KIT | Service Set: 2018 32 Rhythm 29in 15x110QR 51 OS CSU Matte Black |
Lower Leg Assemblies:
| 820-20-094-KIT | Service Set: 2021 32 29in 80-130 15x110 QR Fox Matte Blk Lower Leg Assy, P-S & Rhythm |
| 820-20-096-KIT | Service Set: 2021 32 29in 80-130 15x110 QR Fox Shiny Black Lower Leg Assy, P-S & Rhythm |
Axle Assemblies:
| 820-09-063-KIT | Service Set: 2020 FOX-Marzocchi 15x110 QR Adjust Axle Assembly |
| 820-09-019-KIT | Service Set: Axle Assembly: 15 X 110mm Kabolt, Black Ano |
| 820-09-023-KIT | Service Set: Axle Assembly: 15 X 110mm Kabolt, Orange Ano |
Lower Leg Small Parts:
| 803-00-370 | Service Set: 15QR Hardware (Contains: Axle nut, hold down, and set screw) |
| 019-02-008 | Fastener, Custom: 09 15QR Axle Nut, 8º Chamfer |
| 026-03-009 | Mounting Hardware, Axle Nut Hold-Down, 15QR |
| 241-02-040 | Fastener, Custom: Screw [M4 X 10] FHCS, Black Zinc, Patchlock |
Decal Kits:
| 803-01-506 | Decal Kit: 2021, 32, P-S, Gray Logo, Matte Black Fork |
| 803-01-507 | Decal Kit: 2021, 32, Rhythm, Gray Logo, Rhythm Fork |
Complete Cartridges:
| 820-18-557-KIT | Service Set: 2025 32 Rhythm 29 80-120, QR9 & QR15X100, Grip Cart Assy Complete |
| 820-18-562-KIT | Service Set: 2025 32 Rhythm 27.5 & 29 80-120, QR15X110, Grip PTU Remote Cart Assy Complete |
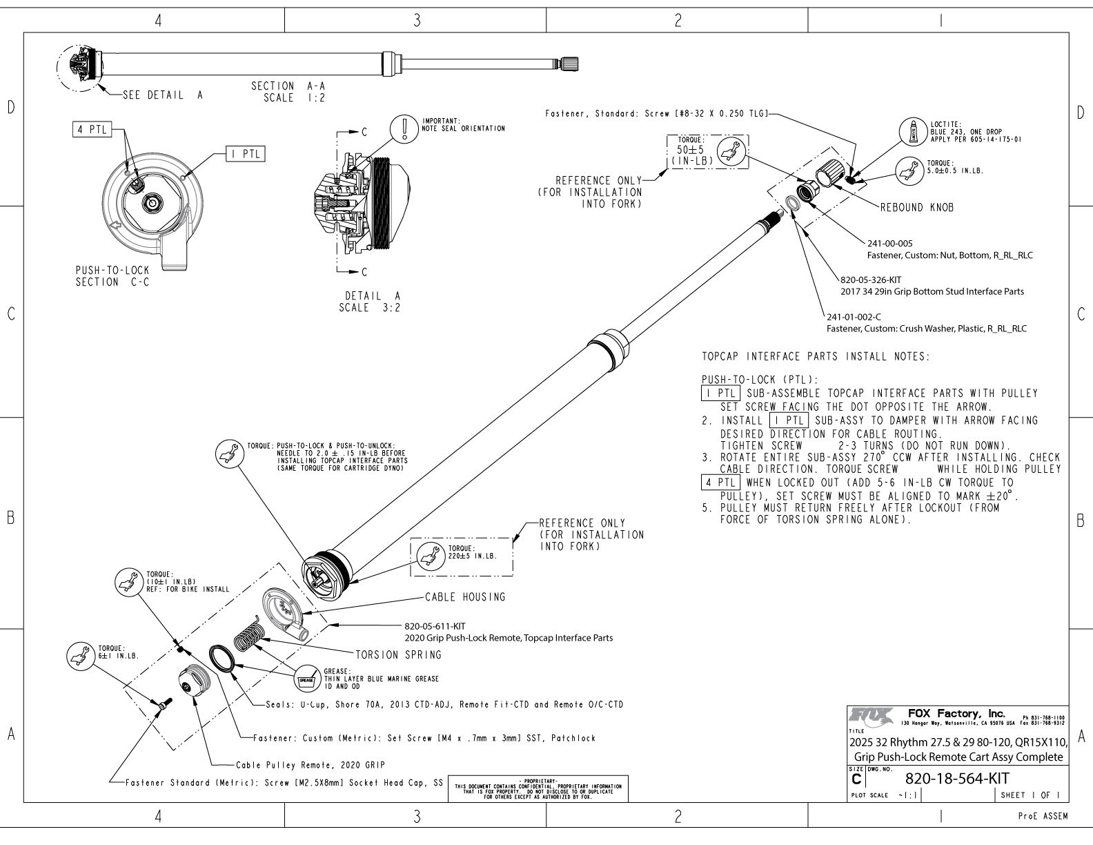
| 820-18-564-KIT | Service Set: 2025 32 Rhythm 27.5 & 29 80-120, QR15X110, Grip Push-Lock Remote Cart Assy Complete |
Cartridge Topcap Assemblies:
| 820-05-520-KIT | Service Set: 2019 32 Grip Damper, Topcap Assy |
| 820-05-605-KIT | Service Set: 2020 32, All, Grip Remote, Topcap Assy |
Damper Topcap Interface Parts:
| 820-05-461-KIT | Service Set: 2018 Grip 32 Rhythm Topcap Interface Parts |
| 820-05-560-KIT | Service Set: 2020 Grip PTU Remote, Topcap Interface Parts |
| 820-05-611-KIT | Service Set: 2020 Grip Push-Lock Remote, Topcap Interface Parts |
Damper Shaft Assemblies:
| 820-03-581-KIT | Service Set: 2019 32 27.5 80-120 Grip Damper Shaft Assy |
Remotes and Accessories:
| 820-07-190 | Remote Assembly, 2022 Suspension Remote, 3-POS, 22.2, Dual 0,9mm Cable |
| 820-07-191 | Remote Assembly, 2022 Suspension Remote, 2-POS, 22.2, Dual 0,9mm Cable |
| 820-07-129-KIT | Service Set: 2022 I-SPEC-EV Remote Adaptor Assembly for 2022 Forks/Shock Remotes |
| 825-05-006-KIT | Service Set: 22.2 Remote Band Clamp Assy, For: 2022 Fork/Shock Remotes and 2021 1x Transfer Remotes |
Damper Bottom Stud Interface Parts:
| 820-05-326-KIT | Service Set: 2017 34 29in Grip Bottom Stud Interface Parts |
FLOAT NA2 Air Shaft Assemblies:
| 820-02-407-KIT | Service Set: Air Shaft Assy, FLOAT, 2018 32 Rhythm 100 |
| 820-02-406-KIT | Service Set: Air Shaft Assy, FLOAT, 2018 32 Rhythm 110 |
| 820-02-404-KIT | Service Set: Air Shaft Assy, FLOAT, 2018 32 Rhythm 120 |
FLOAT NA2 Topcap Assemblies:
| 820-05-418-KIT | Service Set: Topcap Assy, 2018, FLOAT LC NA 2, 32, Black |
2025 32 Rhythm Grip
- 820-18-557-KIT 2025 32 Rhythm 29 80-120, QR9 & QR15X100, Grip Cart Assy Complete
- 2025 32, 120 MAX, Grip Cart Assy .
- 820-05-520-KIT 2019 32 Grip Damper, Topcap Assy
- 820-03-581-KIT 2019 32 27.5 80-120 Grip Damper Shaft Assy
- 820-03-458-KIT 2017 Grip Rebound Piston Assy, Short Travel
- 820-03-456-KIT 2017 Grip Rebound Valving, Short Travel
- 820-03-331-KIT 2017 Grip Compression Valving
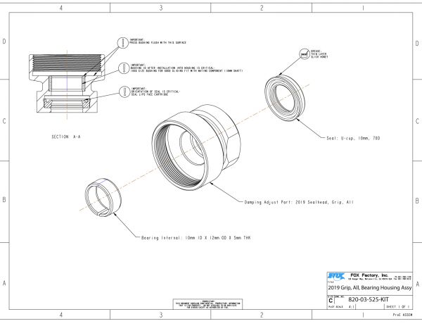
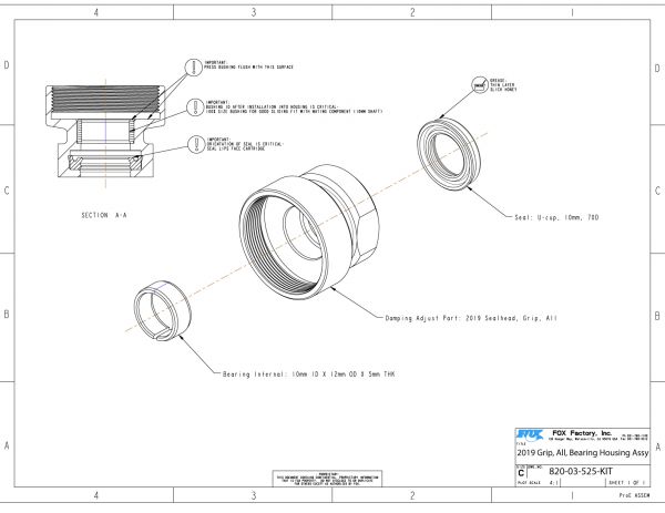
- 820-03-525-KIT 2019 Grip, All, Bearing Housing Assy
2025 32 Rhythm Grip Remote
- 820-18-562-KIT 2025 32 Rhythm 27.5 & 29 80-120, QR15X110, Grip PTU Remote Cart Assy Complete
- 820-18-564-KIT 2025 32 Rhythm 27.5 & 29 80-120, QR15X110, Grip Push-Lock Remote Cart Assy Complete
- 2025 32, 120 MAX, Grip Remote Cart Assy .
- 820-05-605-KIT 2020 32 (NON-SC) GRIP REMOTE TOPCAP ASSY
- 820-03-616-KIT 2020 Grip Remote Compression Valving
- 820-03-581-KIT 2019 32 27.5 80-120 Grip Damper Shaft Assy
- 820-03-458-KIT 2017 Grip Rebound Piston Assy, Short Travel
- 820-03-456-KIT 2017 Grip Rebound Valving, Short Travel
- 820-03-525-KIT 2019 Grip, All, Bearing Housing Assy
2025 32 Rhythm FLOAT NA2
- 2022 32 FLOAT NA2 RHYTHM Air Spring Assys .
- 2022 32 FLOAT NA2 RHYTHM Air Shaft Assys .
- 820-05-418-KIT Topcap Assy, 2018, FLOAT LC NA 2, 32, Black






































